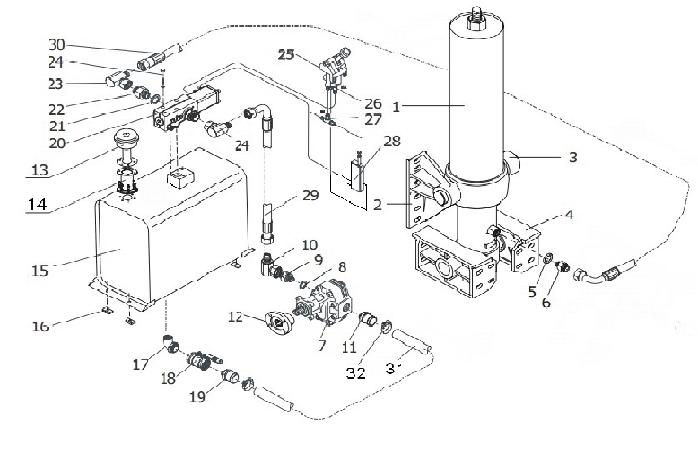
二、自卸車液壓系統組成
序號 名稱" />


| 序號 | 名稱 | 數量 | 備注 | | 序號 | 名稱 | 數量 | 備注 |
| 1 | 液壓缸 | 1 | | 17 | φ45球閥彎接頭 | 1 | | |
| 2 | 上支座(左) | 1 | | 18 | φ45銅球閥 | 1 | | |
| 3 | 上支座(右) | 1 | | 19 | φ45球閥直接頭 | 1 | | |
| 4 | 下支座 | 2 | | 20 | 慢降氣控換向閥 | 1 | | |
| 5 | φ33組合墊圈 | 1 | | 21 | φ33組合墊圈 | 1 | | |
| 6 | | 1 | | 22 | 轉換接頭 | 1 | | |
| 7 | 齒輪泵 | 1 | | 23 | 直角接頭 | 1 | | |
| 8 | 組合墊圈 | 1 | | 24 | 直角接頭 | 1 | | |
| 9 | 轉換接頭 | 1 | | 25 | 慢降組合控制氣閥 | 1 | | |
| 10 | 直角接頭 | 1 | | 26 | 氣管接頭 | 1 | | |
| 11 | 直管接頭 | 1 | | 27 | 氣管三通接頭 | 1 | | |
| 12 | 泵連接器 | 1 | | 28 | 限位閥 | 1 | | |
| 13 | 空氣過濾器 | 1 | | 29 | 高壓油管 | 1 | | |
| 14 | 加高法蘭 | 1 | | 30 | 高壓油管 | 1 | | |
| 15 | 液壓油箱 | 1 | | 31 | 低壓油管 | 1 | | |
| 16 | 油箱減震塊 | 4 | | 32 | 管夾 | 2 | |